Einweihung des Kindergartens St. Michael nach dem Um- und Anbau
Mit großer Freunde wurde der neue Um- und Anbau des Kindergartens St. Michael eingeweiht. Dabei waren (von links): Fränzi Kleeb, Matthias Kleindienst, Luitgard Weirich-Fleischer und Susanne Kech.
Anstoß für den Um- und Anbau war die Bedarfsanalyse und auch die Warteliste des Kindergartens, die uns zeigten, dass wir einen dringenden Bedarf bei der Versorgung der unter Dreijährigen hatten. Die Lösung des Problems sah einen Umbau im Bestand vor und dadurch die Einrichtung von zusätzlichen Räumen für eine U3 Gruppe. Im Jahr 2018 begannen die Planungen und auch der Umbau. Hierbei wurde recht schnell klar, dass dem Projekt der Essbereich zum Opfer fiel. Deshalb planten wir den neuen Anbau, der nun mit einer neuen Küche und einem schönen hellen Essbereich für die Kinder ausgestattet ist. Alles konnte bereits vor längerer Zeit in Betrieb genommen werden und den Abschluss bildeten die Arbeiten im Außenspielbereich in diesem Jahr. Wir danken allen herzlich, die an den Baumaßnahmen beteiligt waren und auch den Erzieherinnen , Kindern und Eltern für ihre Geduld während der Bauzeit.
Spatenstich für den Anbau am Kindergarten St. Michael im April 2019
- Gemeinde Stegen - Kindergarten
Meldungen
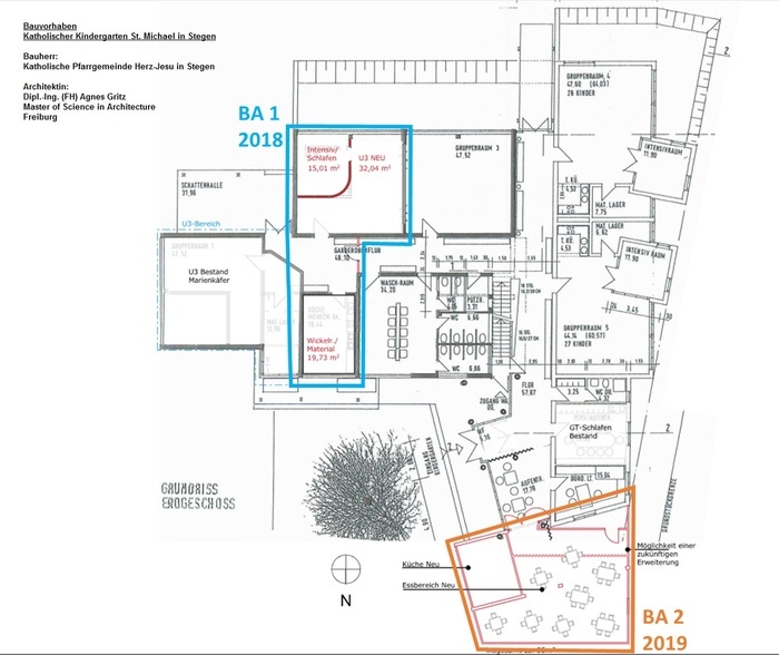
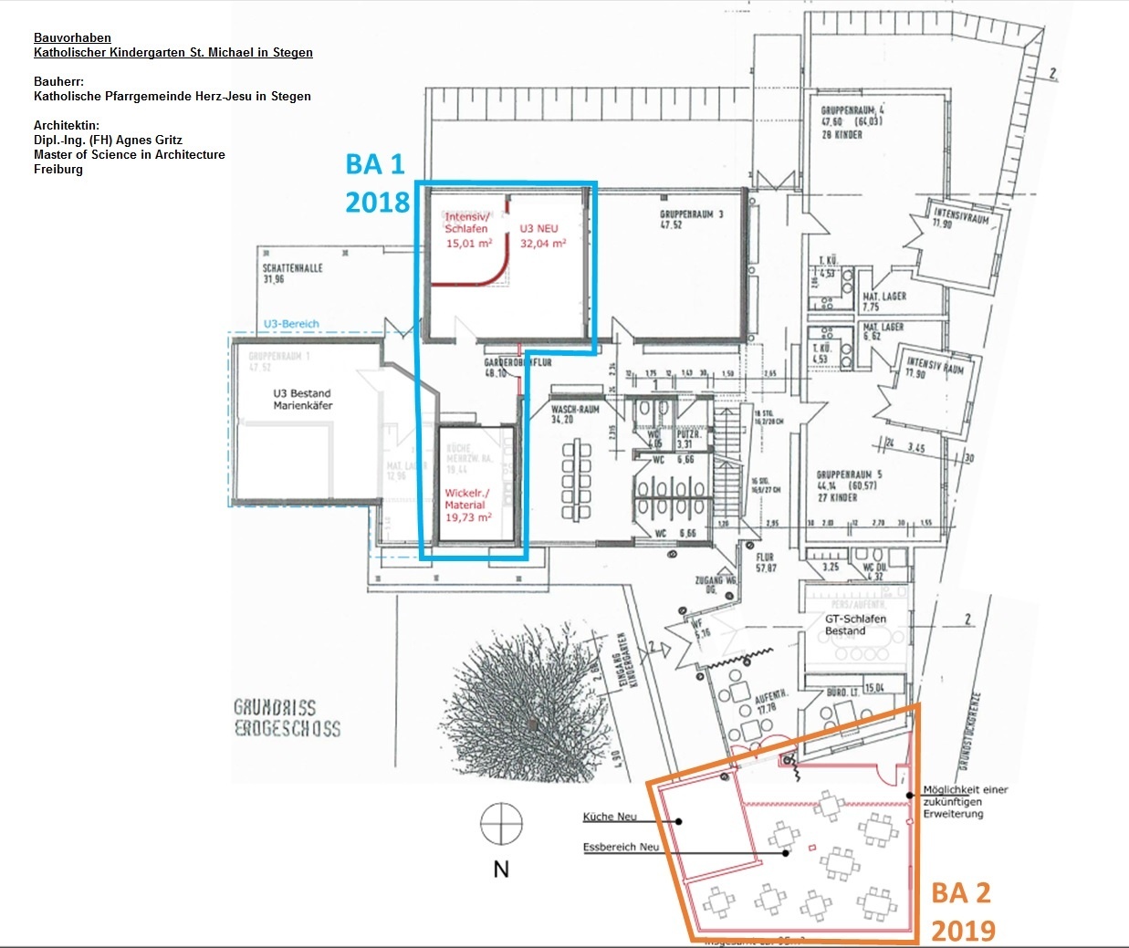
Umbau- und Erweiterungsmaßnahmen Katholischer Kindergarten St. Michael in Stegen
Im März 2018 beschloss der Gemeinderat der Gemeinde Stegen die finanzielle Beteiligung (75 %) an den Umbau- und Erweiterungsmaßnahmen des Katholischen Kindergartens St. Michael der Katholischen Pfarrgemeinde Herz-Jesu in Stegen.
Das Projekt, betreut von der Architektin Gritz aus Freiburg, ist in zwei Bauabschnitte unterteilt. Der 1. Bauabschnitt, „Umbaumaßnahmen zur Einrichtung einer U3-Gruppe im bestehenden Gebäude“, konnte bereits erfolgreich im Jahr 2018 umgesetzt werden.
Für den 2. Bauabschnitt, „Erweiterung des Kindergartens“, liegt nunmehr die Baugenehmigung vor und die Realisierung wird im Jahr 2019 vollzogen.
Das Projekt, betreut von der Architektin Gritz aus Freiburg, ist in zwei Bauabschnitte unterteilt. Der 1. Bauabschnitt, „Umbaumaßnahmen zur Einrichtung einer U3-Gruppe im bestehenden Gebäude“, konnte bereits erfolgreich im Jahr 2018 umgesetzt werden.
Für den 2. Bauabschnitt, „Erweiterung des Kindergartens“, liegt nunmehr die Baugenehmigung vor und die Realisierung wird im Jahr 2019 vollzogen.



